医疗废物暂存处现场照片

















污水处理站现场照片







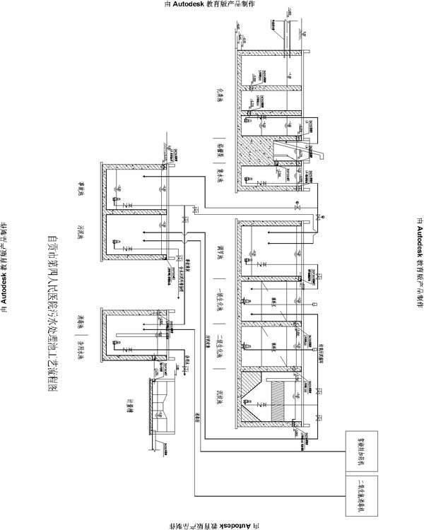
1500m3污水处理站工艺流程

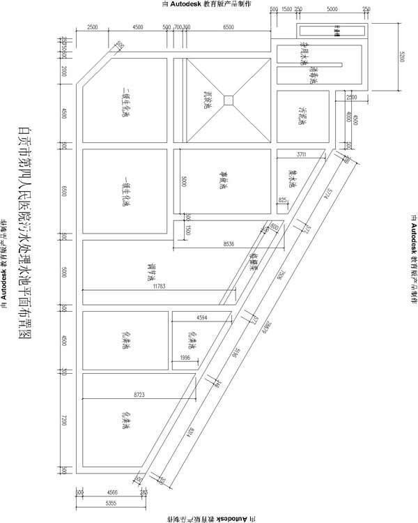
1500m3污水处理站平面布置

急救电话:0813-120 预约挂号电话:0813-2401126、0813-2401026 投诉电话:2300337
联系电话(传真):0813-2201981 电子邮箱:zg_120@126.com 咨询电话:0813-2102560
南湖总院:四川省自贡市自流井区紫薇路1331号 檀木林院区:四川省自贡市自流井区檀木林街19号 汇东院区:四川省自贡市自流井区丹桂大街400号
办公时间:上午8:00-12:00,下午14:30-17:30(周一至周五,节假日除外)
蜀ICP备13006683号-1Copyright © 2002-2026 四川省自贡市第四人民医院 自贡市急救中心 四川卫生康复职业学院附属医院 All Rights Reserved